
Unit 3 Greengate Point
Middleton
Brand New Industrial / Logistics Unit Available Q3 2026
About
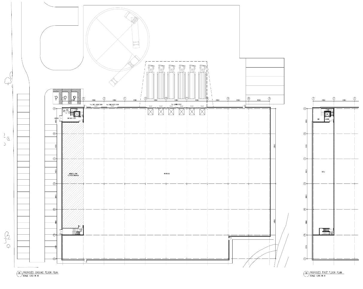
The property comprises a brand new detached industrial / logistics unit which is currently under construction and will be available to occupy in Q3 2026. When complete the unit will provide modern industrial accommodation with a clear internal eaves height of 12 meters. Internally, the scheme will incorporate a two-storey office and amenity block. Loading will be provided via a combination of 6 dock level and 2 level access doors.
Externally, the property includes a secure reinforced concrete service yard designed to accommodate HGV movements, together with provision for both trailer and car parking. Additional specifications are available subject to agreement with the developer.
Externally, the property includes a secure reinforced concrete service yard designed to accommodate HGV movements, together with provision for both trailer and car parking. Additional specifications are available subject to agreement with the developer.
Property Type
Industrial / Warehouse
Terms
To Let
Size
54,340 sq ft
Rent
Rent on application
Status
Available
Detached unit
12m eaves
6 dock loading doors
2 drive in loading doors
5 trailer parking space
Separate yard and parking
53 car parking spaces
Close links to M60, M62, and Manchester City Centre
Location
The property is located within an established industrial area in North Manchester, occupying a prominent and highly visible position close to the junction of Greengate and Greenside Way. The site benefits from excellent accessibility to the regional and national motorway network, situated within 1.5 miles of Junctions 20 and 21 of the M60 motorway and within 2 miles of junction 20 of the M62 motorway, giving access to the rest of the national motorway network. Manchester City Centre is located approximately 5 miles to the south, offering access to a wide labour catchment and supporting amenities.
Get directions







